KKArchitects
Skip to main contentK&K Architects
Graphic Design:
Fotini Filoxenidou
Lighting Design:
k&k Architects, Aris M. Klonizakis
Interactive Applications Consultant:
Angelos Floros
3d Visualization:
Paschalis Galanis
The Competition is contacted by:
Future Library (www.futurelibrary.gr)
and sponsored by:
“Stavros Niarchos” Foundation (www.snf.org)
© K&K Architects
FUTURE LIBRARIES
10 MUNICIPAL MEDIA LABS
The brief
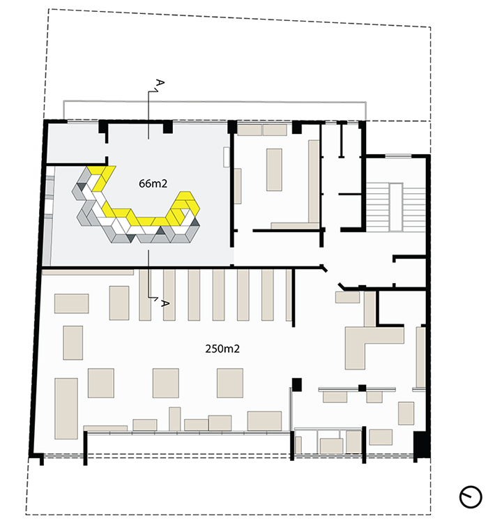
The competition brief is about the design of the media labs of nine libraries that belong to the Future Library Network. The media labs’ target group is mainly teenagers and young adults.Futere Library Media Labs
2013
The proposition focuses on the concept of the community. The main installation is Kerkis, an amphitheatrical structure. The amphitheater is the par excellence symbol of social gathering. Another reference is the impromptu stoop seating that takes place in public spaces. The proposal aims to introduce an atmosphere of public open space into the libraries. Kerkis is formed by three modules that are repeated in space. It borrows the hexagonal form of the honeycomb which is the par excellence symbol of symbiosis in nature. Alongside its conceptual role the repetition of the elements has some practical characteristics that make it exceptionally flexible. Kerkis can take numerous forms and can be easily redesigned to fit in different spaces. The transformation of the installation engages the users in the creation of their own space, reinforcing the concept of the community.
